
Эко-вилла, идеально настроенная под местный климат — дизайн, который экономит энергию и впечатляет гостей

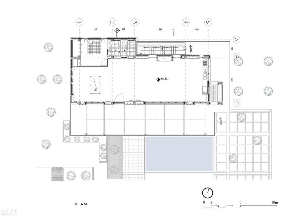
Проект Джалал-Абадская Вилла (Jalal-abad Villa) выполнен архитектурной мастерской Hajm.e.Sabz и введён в эксплуатацию в 2018 году в сельской среде Джелалабада, провинции Исфахан, Иран. Одноуровневое жилое пространство площадью 143 квадратных метра предназначено для семьи инженера и спроектировано с намерением слить внутреннюю программу с наружной средой, обеспечивая вместительное, адаптивное и комфортное пребывание большого числа людей.

В основе концепции Jalal-abad Villa — создание современных открытых планировок с высокой степенью универсальности, сопровождаемой плотной интеграцией экстерьера и интерьера. Для минимизации вмешательства в природный рельеф и рационального использования ранее заложенных конструкций дом возведён на существующем фундаменте, рассчитанном изначально на двухэтажную застройку; этот фундамент унаследован от прежнего, незавершённого проекта, приостановленного в 2009 году.

Пространственная организация виллы выстроена вокруг диалога с ландшафтом: сад и полуоткрытая веранда становятся продолжением интерьера, а ориентация и расположение внешних зон тщательно соотносятся с путём солнца для обеспечения спокойного пребывания в летнюю жару. Открытые террасы и навесные пространства активируют тень в наиболее нагруженные солнцем часы, главный фасад защищён от прямого инсоляционного воздействия, а продольные навесы формируют полуоткрытую веранду, мерцающую видом в зелёный объём сада.

Проект включает сочетание традиционных строительных практик и современных приёмов: архитектурные решения ориентированы на климатический контекст, применены энергоэффективные технологии, недорогие локальные материалы и простые приёмы местного строительства. Внешние и внутренние несущие оболочки выполнены из классического кирпича — материал, который связывает конструктивную логику с региональным строительным опытом. Для термоизоляции каркаса предусмотрена двойная кирпичная стена, между оболочками которой размещён изоляционный слой.

Особое строительное решение — ветрозащитный экран, выступающий одновременно как элемент повышения уровня водозабора и как инструмент природной вентиляции. «Ветроэкран посредством направленного расположения воздухозаборника использует преобладающие ветровые потоки», — после чего воздух проходит через влажную зону служебных помещений и, отфильтрованный и охлаждённый, поступает в жилые помещения через вентиляционные отверстия, обеспечивая естественную циркуляцию и комфортный микроклимат внутри здания.















