Таунхаус с узким фасадом, гармонирующим с архитектурой старого города

Проект Rosari 70, разработанный архитектурным бюро Manuel Sánchez Hernández, реализован в 2020 году в историческом районе Кабаньял, город Валенсия, Испания. Некогда рыбацкий поселок, Кабаньял до сих пор сохраняет свой особенный колорит и специфический нрав, непохожий на типичный испанский город. Первоначально здесь строились легкие и скромные рыбацкие хижины и казармы, затем малобюджетные прямоугольные домики, максимально использующими территорию улицы. Сегодня район сохраняет своеобразный характер, в нем по-прежнему много старых однотипных домов с узкими фасадами, к которым вплотную примыкают здания модернистской и современной архитектуры.

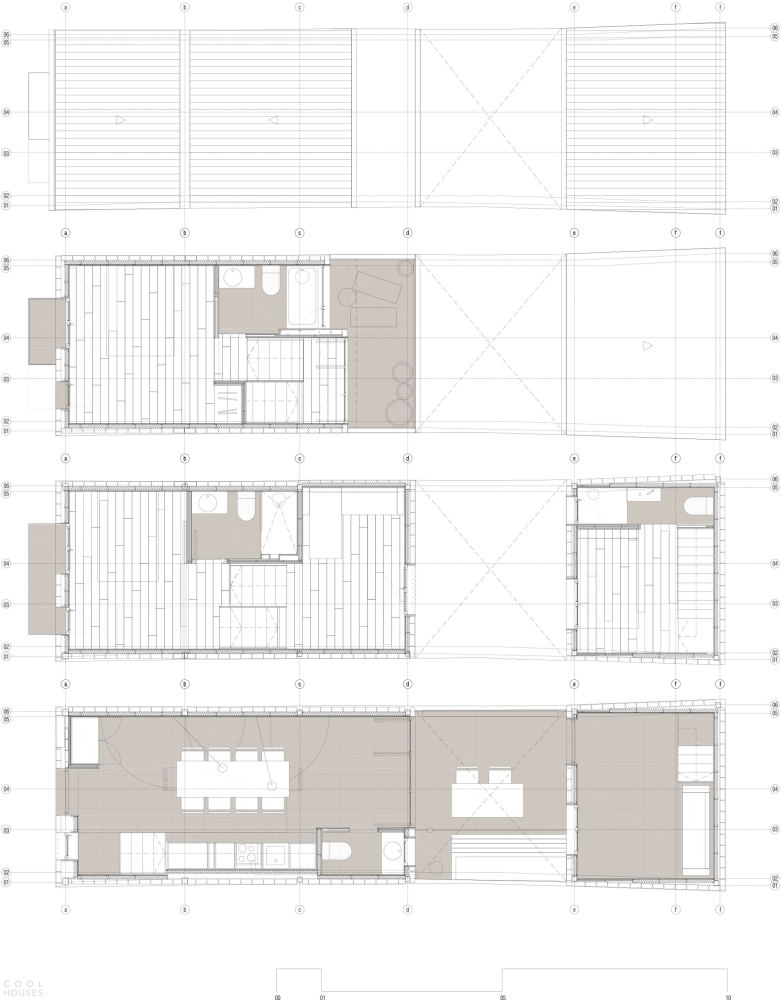
Проект Rosari70 находится на одном из таких узких участков — четыре метра в ширину и пятнадцать в глубину. С востока и запада участок окружен трехэтажными домами. Основная сложность проекта заключалась в максимальном использовании площади сложного участка и обеспечении внутренних пространств естественным светом. Архитекторами было принято решение о размещении внутри дома патио, в результате чего он оказался разделенным на две части. Это позволило не только наполнить дом светом, но и обеспечить взаимосвязь всех функциональных зон.

Вторая особенность проекта заключалась в оптимальной конструкции лестницы. Внутренние плиты связаны друг с другом на высоте среднего этажа, что позволило упростить разработку лестницы за счет экономии площадок. Кроме того, такая конструкция обеспечивает прохождение через здание максимально возможного потока естественного света. Эти решения, а также высокий первый этаж и отказ от поперечных ограждений, позволили создать гибкие и светлые внутренние пространства.

Фасад Rosari 70 отличается простой, четкой и лаконичной структурой. Используемые в облицовке некоторые традиционные материалы, такие как керамика и дерево, приближают объект к традиционной строительной архитектуре, но, при этом, дизайн экстерьера имеет современный вид. Открытые пространства на фасаде — террасы, балконы и балконные окна, обеспечивают связь дома с окружающей средой, однако формирование дизайна проекта сосредоточено по направлению к интерьеру.

Общая площадь трехэтажного дома составляет 117 квадратных метров. Ландшафтный дизайн внутреннего дворика создает ощущение улицы, поддерживаемое скамейками и зелеными растениями. Изюминкой проекта является вертикальный сад в виде мозаики зелени в самой тенистой части внутреннего дворика. Кроме патио, дом имеет еще один двор в задней части дома. Терраса на втором этаже использует самую солнечную сторону, что позволило превратить ее в солярий.















