Загородная резиденция, погруженная в идиллический пейзаж

Проект Резиденция Shoreland Overlook, разработанный архитектурной студией Murdough Design Architects, выполнен в 2018 году в городе Сентр-Харбор, графство Белкнап , Нью-Гэмпшир, США. Роскошный дом для загородного отдыха расположен в буково-болиголовом лесу на склоне холма с видом на живописный берег озера Сквам и далекие горы за ним. Дом принадлежит паре, которая решила построить комфортное убежище на природе, где бы они могли принимать родственников, многочисленных друзей и коллег.

Для строительства нового здания был использован старый дом, построенный в 1960-х годах, что позволило свести к минимуму воздействие на лес и близлежащие заболоченные земли. Для получения выгодных пейзажных видов резиденция ориентирована на северо-восточную сторону, открывающую панораму на озеро и горы.

Проект площадью 836 квадратных метров состоит из трех отдельных строений, включающих главный дом, гостевой коттедж и художественную студию. Все строения связаны между собой массивной крышей, объемные линии и платформы которой повторяют естественный рельеф склона. Широкая крыша, настилы и мосты соединяют различные объемы здания и внешние пространства между ними, перекликаясь с естественными волнами топографии и стирая границу между экстерьером и интерьером. Конфигурация резиденции позволила организовать несколько уютных террас и площадок для отдыха. Так, предусмотрено место для костровой ямы и открытой гидромассажной ванны, а круглая большая терраса предлагает идеальное место для вечеринок.

Конструктивной особенностью проекта является организация системы дренажа участка. Между главным и гостевым домом, а также под соединяющим их мостом находится горная дренажная впадина. Беспорядочные валуны, камни, папоротник и мох образуют естественное водно-болотное угодье. Крыша отводит воду через дренажные отверстия, образуя «влажный» ландшафт с местными растениями и валунами, поэтому растения на участке не требуют полива.

В проекте использованы натуральные материалы, преимущественно местные. Фасады здания, облицованные темным кедровым сайдингом, позволяют строению спрятаться в лесу среди густых деревьев. В интерьере использованы мягкие красивые, экологически чистые природные материалы, среди которых древесина западного красного кедра и американского черного ореха, а также гранит и сталь. Большие свесы крыши и пассивная вентиляция здания обеспечивают охлаждение помещений в летнее время.

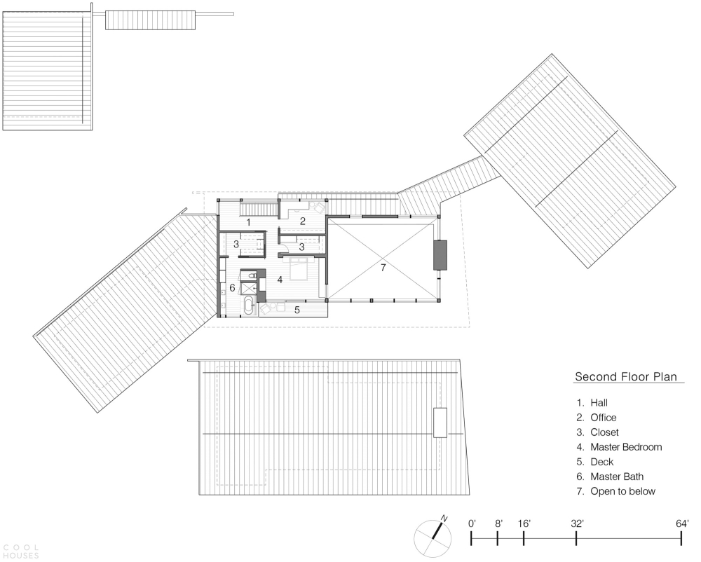
Первый этаж главного дома, его площадь 509 квадратных метров, занимает социальная зона открытого плана. Стены и потолок пространства облицованы древесиной красного кедра, пол выполнен из дерева ореха. У гранитного дровяного камина оборудован уголок отдыха. Высокий 6-метровый потолок привносит в пространство ощущение простора и свободы. Через раздвижные стеклянные двери социальная зона связана с большой открытой террасой. Панорамное остекление создают эффект присутствия на природе, стирая грань между экстерьером и интерьером. На втором этаже находится главная спальня-люкс. Ее простой уютный интерьер украшает роскошный вид на окружающий ландшафт. Спальня имеет отдельную террасу с видом на озеро и ванную комнату, расслабляющую атмосферу которой обеспечивают стратегически расположенные окно и зеркало.

Двухэтажный коттедж площадью 209 квадратных метров может одновременно вместить более 16 гостей. В нем оборудовано четыре люкса, в каждом из которых есть спальня, двухъярусная комната и ванная комната.

Двухэтажная художественная студия площадью около 118 квадратных метров предназначена для изготовления изделий из керамики. Компактная винтовая лестница объединяет уровни, а для транспортировки изделий на нижний уровень для обжига в печи используется кухонный лифт.
















