Новое офисное здание южнокорейской компании DMIL

Новое офисное здание компании DMIL, спроектированное архитектурной студией Plainoddity, построено в 2020 году в Каннамгу, современном районе города Сеул, Южная Корея. DMIL — это бьюти-MCN группа, работающая в области новых медиа, представленной индустрией красоты и YouTube, и создающая контент, который помогает людям и жизни.

Идея архитектурного дизайна выражает стремление создать собственный, интересный и особенный мир, созвучный с программой деятельности компании. Концепция проекта BLACK IS THE NEW BLACK («Черный — это новый черный») представляет собой формирование современного многофункционального пространства с использованием черных и серых тонов. Учитывая, что DMIL — инновационная компания, в дизайне внешних и внутренних пространств были использованы не традиционные прямые линии, а разнообразные геометрические формы.

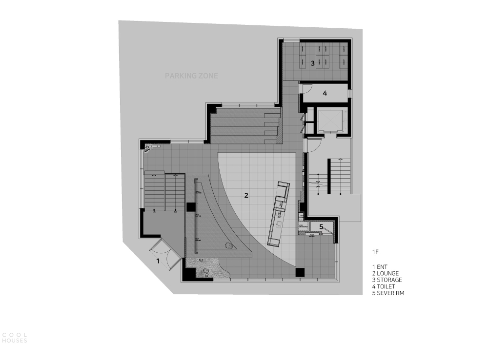
Общая площадь здания составляет 230 квадратных метров. Дизайн проекта впечатляет стильной формой с необычной геометрической конфигурацией этажей. Каждый этаж отличается собственной формой и особенностями ориентации, что делает здание необычайно интересным и выразительным. Большая площадь остекления смягчает темно-серые фасады и придает экстерьеру некоторую легкость. Острые фасадные углы верхних этажей создают иллюзию движения здания, его устремленность в будущее, что созвучно с деятельностью компании. Здание отражает силу и смелость, готовность обратиться к своей силе и понять собственную внутреннюю сущность.

Дизайн внутренних пространств основан на контрасте, взаимосвязи и взаимозависимости. Благодаря черно-серой цветовой палитре, необычным геометрическим конфигурациям и оформлению интерьеров в целом, внутри офиса сохраняется эффект присутствия на улице. Особенность конфигурации многоцелевого пространства заключается в способности легко адаптироваться к любой поставленной задаче. Главный акцент экстерьера и интерьера — зеленый оазис, который состоит из скульптурных элементов, эффектно оживленных зеленью и водой. Цокольный и первый этажи, оформленные под лозунгом «Создание красоты через соединение», отведены под зону приема гостей и место для отдыха сотрудников. Пространство включает в себя студию, конференц-зал, кафе и лаунж. В оформлении интерьеров использованы натуральные материалы, в том числе, природные камни.
















