Интерьер в винтажном стиле с эстетикой рыболовецкого района

Проект Rei 164 House, включающий реконструкцию квартиры, разработан архитектурной студией DG Estudio и выполнен в 2020 году. Квартира занимает последний этаж в старом трехэтажном доме в Эль-Кабаньял, одном из рыбацких районов города Валенсия, Испания. Здание, сохранившее свой первоначальный вид, несмотря на богатую историю, занесено в каталог архитектурных памятников этого региона.

Поэтому, не случайно, цель проекта была созвучна с контекстом местности и заключалась в создании функционального, свободного и светлого пространства, соответствующего эстетике и истории рыболовецкого района. Район, где находится этот красивый исторический дом, располагается вблизи моря и пляжа. За последнее время он сильно изменился. Сегодня на его улицах сосредоточено множество ремесленников, художников, дизайнеров. Верные своей первоначальной сущности, старые рыбацкие дома с фасадами, покрытыми плиткой для защиты от селитры, активно обновляются, чтобы соответствовать запросам новых жильцов. Так обстоит дело и в этом доме.

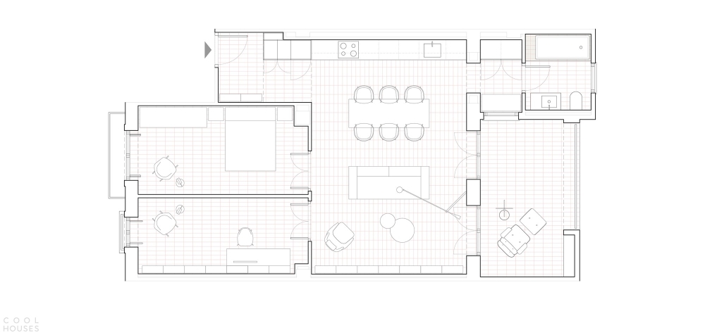
Квартира площадью 98 квадратных метров принадлежит писателю, поэтому в приоритете ее оформления присутствие книжного шкафа и книг. Интерьер выполнен в винтажном стиле, что вполне созвучно экстерьеру. Особенностью квартиры являются перепады высоты помещений в зависимости от функционального наполнения. Главным и центральным пространством дома является большое светлое помещение – дневная зона открытого плана, включающая гостиную, столовую и кухню, высота которого составляет около пяти метров – это самое высокое помещение в квартире. Потолок двойной высоты опускается к фасаду, где расположена терраса.

Основным предметом интерьера в гостиной, что вполне объяснимо, является большой модульный книжный шкаф multiistrux с открытыми полками, спроектированный в 1961 году испанской фирмой Multimueble. Этот культовый предмет интерьера делает книги и личные вещи писателя главными героями всего пространства. Линейная кухня оборудована белой лакированной мебелью и мебелью из натурального дерева. В центре столовой — старинный деревянный стол и стулья. Легкие кресла, скульптурная лампа, множество декоративных ретро-предметов, в том числе коллекция деревянных мини-домиков дизайнера Марио Руиса (Mario Ruiz), изданная мадридской компанией Mad Lab, деревянная черная птица, известная как Птица Дома Имс, изготовленная швейцарской компанией Vitra, придают интерьеру особый уют и романтичность. В то же время, все эти предметы вызывают приятную ностальгию о прошлом времени. Из социальной зоны предусмотрен доступ к другим комнатам, в том числе в спальню и рабочий кабинет, а также на большую террасу.

В проекте используются два основных материала, которые не только сопровождают последовательность высот, но и усиливают внимание к ней, формируя особую эстетическую линию, типичную для рыболовецкого района прошлых лет, — натуральное дерево и терракотовая керамическая плитка. Эти материалы прекрасно сочетаются с мебелью и оригинальными предметами интерьера, характерными для дизайна 1950-60-х годов.











