
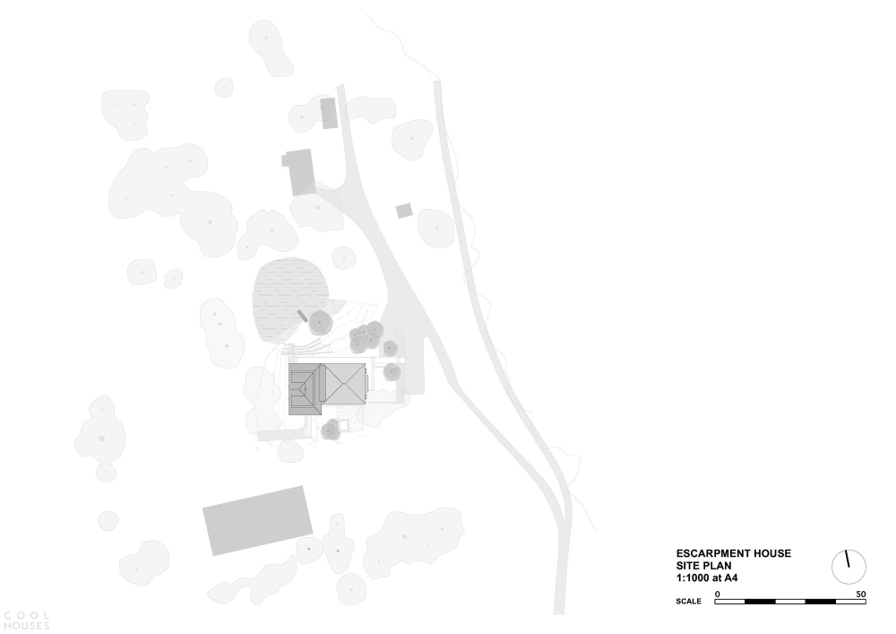
Дом на откосе — дом, от которого невозможно оторвать взгляд: идиллический пейзаж вокруг завораживает

«Дом на откосе» (Escarpment House), воплощённый в 2020 году студией Virginia Kerridge Architect, расположился в углу нового южновэльского ландшафта — там, где леса, скалы и простор сельской местности составляют единый экологический и визуальный контекст. Проект опирается на характер места и биоту, населившую его, а дом мыслится как соучастник среды, где животные — свиньи, ослы, лошади, собаки и утки — находят безопасный приют. Холм, обрамлённый откосами, задаёт ощущение защищённости и сокрытого присутствия, а водоёмы и буйная растительность создают «остров» умиротворения для всех обитателей участка.

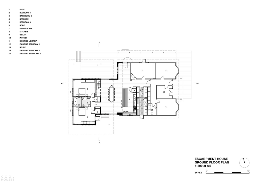
Главная задача архитектурной интервенции заключалась в сохранении аутентичных фрагментов бывшего молочного завода и встраивании пристройки, предназначенной для общественной жизни семьи. Форма нового объёма отсылает к морфологии существующего здания: архитектурный приём — заимствование объёма и материала — создаёт единство двух отдельных структур. В результате два автономных по истории и генезису корпуса воспринимаются как цельный дом благодаря общей геометрии и соподчинённой визуальной палитре.

Владельцы, активные сторонники экологического подхода, задали проекту жёсткие критерии устойчивости: приоритет был отдан вторичному использованию материалов и автономности энергетической системы. Дом спроектирован с расчётом на минимальную зависимость от внешних сетей — на крыше хозяйственной постройки установлены солнечные панели, обеспечивающие значимую часть бытового энергопотребления.

Пристройка двухэтажна и частично погружена в зелёную массу леса. С верхнего уровня, где располагается гостиная зона, открывается панорамный взгляд на окружающий ландшафт — вид, который владельцы особенно ценят за его связь с центральным ориентиром участка, «Деревом Джошуа», ставшим непременным элементом личного ландшафтного нарратива.

Одна из ключевых угроз для этого места — лесные пожары, эпизоды которых стали особенно ощутимы в октябре 2019 года. Проект учитывает риски и включает ряд активных мер противопожарной защиты. По периметру кровли проложена система медных труб с опрыскивающими насадками для форсированного орошения поверхности во время угрозы возгорания; дополнительно обеспечены ёмкости для резерва воды: локальный бак на 20 000 литров и две крупные накопительные ёмкости по 50 000 литров у въездной группы, снабжаемые пружинной подачей.

Ландшафтный замысел, реализованный Джейн Ирвин, задаёт скелет развития участка и усиливает идею спокойного, целостного пространства. Лесная граница, террасированные зелёные откосы и существующая плотина с живописными берегами образуют ансамбль, где каждое элементное решение стремится к гармонии и эстетическому совершенству.














