Уединенная вилла с идеальным панорамным видом

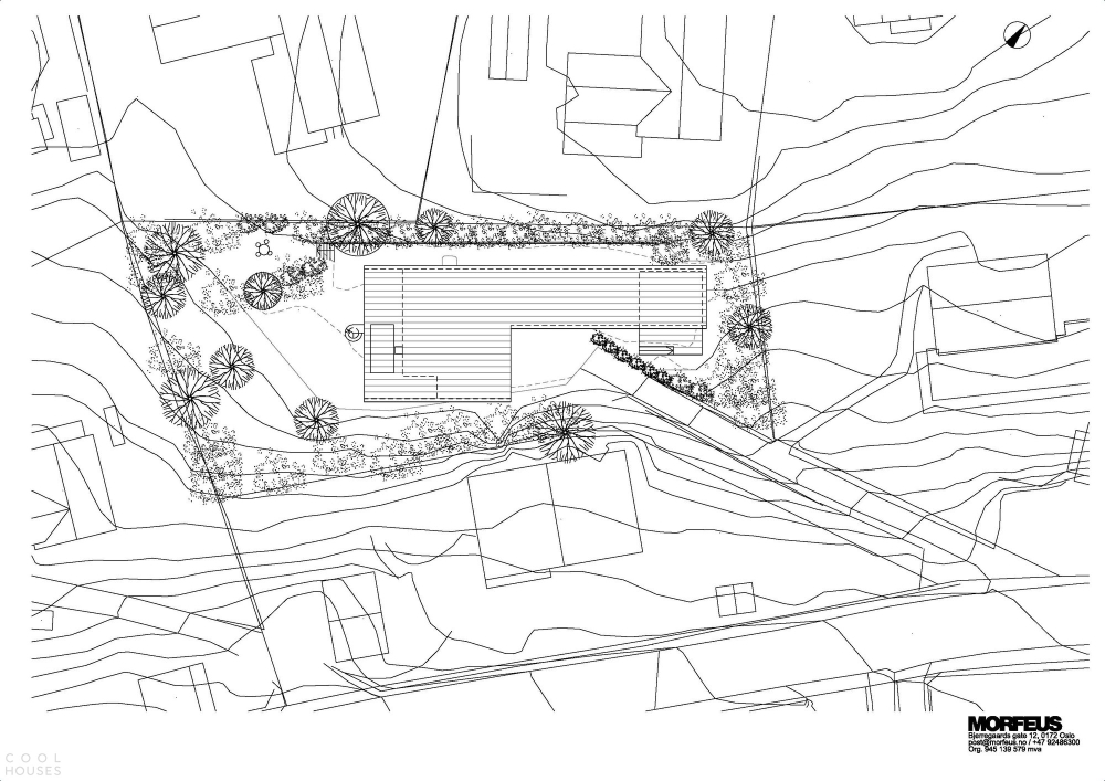
Частная вилла «Высокая гора» (Fjeldhøi), спроектированная MORFEUS arkitekter, возведена в 2020 году в районе Яр, недалеко от города Осло, Норвегия. Это двуэтажное жилье площадью 280 квадратных метров, расположенное на вершине хребта, предоставляет невероятный обзор на Осло-фьорд. Пространство с высоким внутренним объемом наполняет дом солнечным светом, а окружение — старым сосновым лесом. Со стороны вилла словно прячется среди вершины вековых деревьев, создавая атмосферу уединения и интимности. Смысловая связка между природой и архитектурой здесь становится явной: свет, лес и панорама работают в единой гармонии.

История виллы восходит к 1912 году, когда на этом месте появился дом в швейцарском стиле. Со временем здание пришло в упадок, и восстановление стало невозможным. Шале было снесено, а сохранившиеся фрагменты уютного дома передали владельцам аналогичных строений в дар, что позволило продлить жизнь тем предметам, которые еще сохраняли пригодность к эксплуатации — таким образом обретали вторую судьбу двери, окна, петли и подобные детали.

Конфигурация первого этажа нового здания следует западной линии оригинального дома и восточного навеса с курятником — на эти две части опирается второй этаж. Подъездная дорога сохранена, однако над ней в 12-метровом свободном пролете возведен второй этаж, образуя крытую автостоянку и защищенный вход в дом. Сохранение большего участка старого сада на западе и окружение растущими вокруг виллы деревьями позволили сохранить характер района и частичную приватность каждой земли.

Архитектурное решение новой виллы полностью адаптировано к конкретной ситуации. Крыша поднимается от востока к западу, открывая главный вид внутрь дома и наполняя интерьер природным светом. Наклон крыши на востоке снижен, что уменьшает общую высоту здания и обеспечивает приватность соседей. В течение столетия территория вокруг оказалась плотной застройкой, поэтому вилла оказывается среди домов с единым планировочным языком и подобной высотой, создавая гармоничный вид района и соблюдая приватность каждого участка.

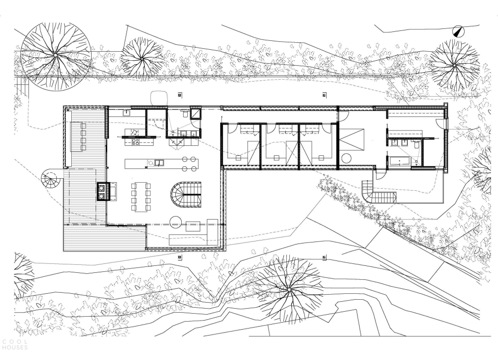
Основной строительный каркас состоит из древесного клееного бруса и стали. На первом этаже полы из полированного бетона, в гостиной — роскошная дубовая доска. Парадная лестница обладает тактильной пластикой из дуба, подчеркивая материальную выразительность пространства и визуальной монолитности общего объема.

В проекте уделено особое внимание смешению внешних и внутренних пространств. Разница температур зимой и летом, нехватка естественного света в холодный период требовали гибкой связи между интерьером и окружающей средой. Эту связь усиливают обширные веранды и террасы, выходящие в сад — как на первом, так и на втором этажах. Окружение оживляет открытый камин на одной из террас, а наружная винтовая лестница соединяет этажи снаружи, обеспечивая легкий доступ между внутренним и внешним пространствами.

















Архитектура, которая вдохновляет! Узнайте о современных проектах, инновационных решениях и шедеврах мировой архитектуры