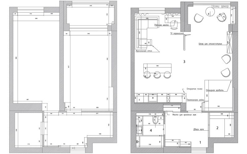
Перепланировка однокомнатной квартиры 55 кв.м

Данная квартира не предполагает постоянного проживания хозяев, в ней заказчики предполагают жить наездами — как на даче. Поэтому квартиру решено было сделать единым пространством, что удалось осуществить с помощью демонтажа не несущей перегородки между кухней и единственной комнатой.
Стиль заказчики определили сразу — кантри, но не просто деревенский и простой, а современный и функциональный.

- Прихожая
- Гардеробная
- Кухня-гостиная-спальня
- Санузел

Главные оттенки в квартире — белый, голубой, бежевый, серый — те, что выбирали заказчики. Вся мебель выполнялась на заказ по авторским эскизам. Поддерживают стилевое направление текстиль, балки на потолке, имитация камина, картины и различные мелочи в декоре.




Архитектура, которая вдохновляет! Узнайте о современных проектах, инновационных решениях и шедеврах мировой архитектуры