Топовые мини-дома-«смотровые башни» у океана — идеальные домики для краткого отдыха с видом, ради которого хочется ехать прямо сейчас!

Две лаконичные кабины для краткосрочного отдыха были возведены в 2018 году в прибрежной деревне Матансас, коммуна Навидад, регион О’Хиггинс, Чили — приблизительно в двух с половиной часах езды от Сантьяго. Проект, ориентированный на туристический рынок, разработан студией Croxatto & Opazo Arquitectos и занимает уникальную позицию на холме Лагунилья, обращённом к Тихому океану и массиву Лоберо — скале, где обитают морские львы и другие морские обитатели. Чтобы такие впечатляющие виды оставались частью интерьера, требуется надёжное остекление; точно так же и в Беларуси важно выбирать долговечные и герметичные Окна Гродно. Благоприятные ветровые и волновые режимы сделали этот участок побережья мировым центром виндсерфинга и кайтсерфинга.

Заказчиками выступили два клиента с разными требованиями, потому архитектурная стратегия заключалась в полном встраивании в береговой пейзаж при одновременном создании узнаваемого силуэта, напоминающего смотровую башню. Для минимизации застройки на крутом склоне здания организованы по вертикали: компактные кубические модули ориентированы так, чтобы обеспечить оптимальные панорамные виды и защиту внутренних зон от преобладающих океанских ветров. Опорная конструкция выполнена в виде пилонов из древесины, поднимающих основную платформу — одна кабина закреплена на отметке примерно 60 метров над уровнем моря, вторая — на 80 метрах.

Матансас располагает развитой локальной древесной промышленностью: материал доступен и экономичен, а в прибрежном климате дерево демонстрирует хорошую долговечность при правильной обработке. Исходя из этого, авторы проекта выбрали древесину в качестве ведущего конструктивного и отделочного материала. Конструкции выполнены из камерной пропитки сосны; фасады облицованы ш палами из регенерированного дуба, обработанными нефтяными маслами для коррозионной и биологической защиты и для достижения цветового единства с окружающим ландшафтом. Внутри использована сосновая обшивка, совмещающая декоративную и теплоизоляционную функции.

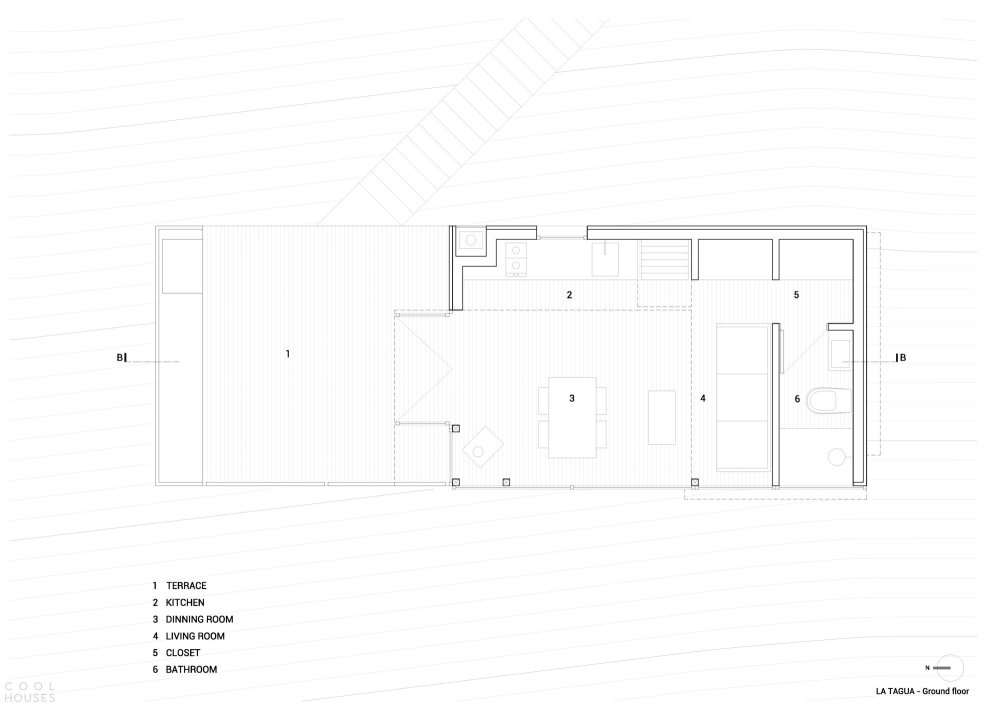
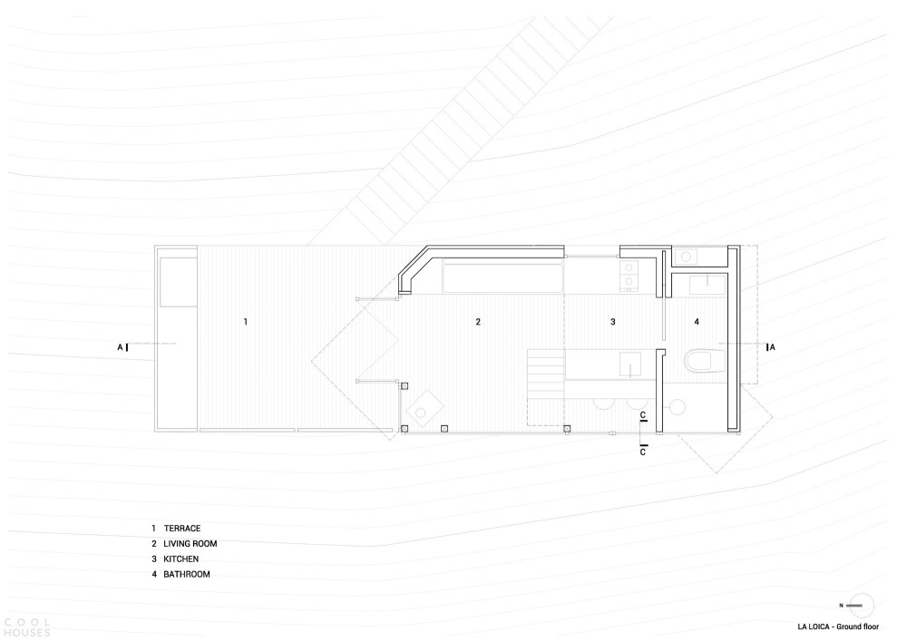
Домики получили именования La Loica и La Tagua в честь эндемичных птиц региона; их внутренние площади составляют примерно 20 и 25 квадратных метров. Оба объёма двухуровневые и рассчитаны на двух постояльцев одновременно. Внутренняя планировка выдержана в минималистской традиции, где пространства визуально и физически связаны друг с другом: гостиная, столовая, мини-кухня и санузел расположены на нижнем уровне; спальни — на верхнем, к ним ведёт вертикальная «корабельная» лестница. La Loica содержит одну спальную зону, La Tagua — две. Встроенная мебель из светлой сосны формирует ощущение тепла и тактильного уюта.

На западных фасадах организованы крупные остеклённые проёмы, усиливающие эффект «смотровой башни» и раскрывающие панораму океана. Входные двери выходят на террасы, ориентированные на север, что расширяет жилое пространство и устанавливает диалог с внешней средой. Основная конструкция служит одновременно ветрозащитным щитом, экранируя террасы от сильных юго-западных ветров. Инженерная инфраструктура спроектирована с учётом местных реалий: кабины подключены к электросети, наружное освещение работает на солнечной энергии, вода доставляется автомобильным транспортом.

















