Дом Бумеранг с уникальным архитектурным дизайном

Проект Дом Бумеранг разработан архитектурным бюро AJG Architects и реализован в 2020 году в районе Риссков, в северной части города Орхус, Дания. Оригинальной дизайн виллы превратил обычный участок земли в пышном зеленом саду в необыкновенно привлекательное место.

Изначально этот живописный район, расположенный в 120 метрах от моря, планировался как зона отдыха горожан. Но постепенно стал застраиваться резиденциями, которые из домов для загородного отдыха постепенно были преобразованы в дома для постоянного жительства, сохраняя, при этом, зеленый ландшафт, экологию и спокойную атмосферу.

Архитектурная концепция проекта отличается от традиционной практики планировки, при котором строительный объем располагается параллельно одной из границ собственности, с целью иметь как можно больше площади для сада. В данном случае, тщательно изучив особенности достаточно компактного участка и пожелания заказчика, архитекторы предложили расположить объект в центре сада. В результате получился стильный и очень комфортный дом, дизайн и конфигурация которого разделили сад на несколько смежных открытых жилых зон. Это позволило повысить функциональность и оптимальное использование сада, а также создать дом, тесно интегрированный с внешней средой.

Само здание спроектировано в виде двух кирпичных сплошных блоков, которые установлены на каждом конце сада и соединены легкой плавающей крышей, облицованной ясенем. В результате такой оригинальной конструкции образована практически полностью прозрачная социальная зона, тесно связанная с другими функциональными областями.

Другой особенностью проекта стал тот факт, что владельцы дома самостоятельно собирали модель здания и несли ответственность за большую часть строительства. Самостоятельная сборка модели предоставила больше свободы и обеспечила экспериментальный подход к процессу проектирования. Множество деталей для проекта было изготовлено по индивидуальному заказу, а также имели особые условия обработки материалов, которые придали дому неповторимый индивидуальный характер и наделили уникальными характеристиками.

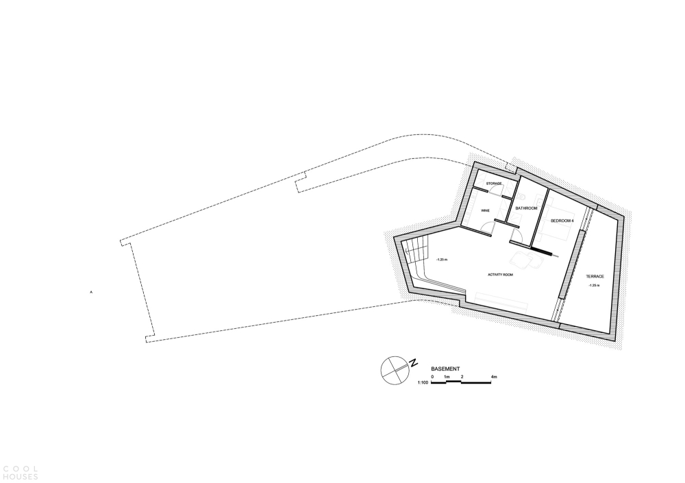
Общая площадь двухуровневого дома составляет 290 квадратных метров. Основной этаж занимает социальная зона открытого плана и двойной высоты – гостиная, столовая и кухня. Стеклянные стены с двух сторон обеспечивают пространство достаточным количеством естественного света. Стеклянные двери обеспечивают связь с внешними террасами и садом. По одну сторону от социальной зоны находится хозяйственный блок с прачечной, ванной комнатой и гаражом. По другую сторону высота здания разделена на два уровня, на которых размещена приватная зона. Небольшая деревянная лестница поднимает на второй уровень, где находятся три спальни с ванными комнатами. Такая же миниатюрная лестница из светлого дерева ведет в цокольный этаж, где размещается большая комната для занятий, спальня с ванной комнатой, винный погреб и складское помещение.














Архитектура, которая вдохновляет! Узнайте о современных проектах, инновационных решениях и шедеврах мировой архитектуры